Listas 184 Frank Lloyd Wright Caracteristicas Arquitectura Fresco
Listas 184 Frank Lloyd Wright Caracteristicas Arquitectura Fresco. El legendario frank lloyd wright es uno de los arquitectos más famosos de la historia. La arquitectura de frank lloyd wright: Taliesin, taliesin west, museo guggenheim, grady gammage memorial auditorium, unity temple, hollyhock house, fallingwater, robie house. Discípulo de sullivan en chicago, no sólo superó la teorías de éste, sino que elaboró sus propias concepciones y además asimiló las enseñanzas de los grandes arquitectos europeos como le corbusier y mies van der rohe, que trabajaron ocasionalmente en estados unidos.
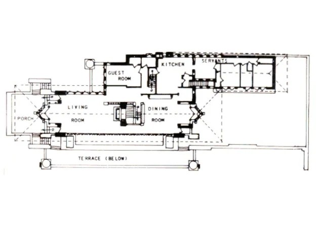
Mejor Casa Robie Frank Lloyd Wright 1909 Relevancia De La Obra En El Contexto De La Arquitectura Docsity
Discípulo de sullivan en chicago, no sólo superó la teorías de éste, sino que elaboró sus propias concepciones y además asimiló las enseñanzas de los grandes arquitectos europeos como le corbusier y mies van der rohe, que trabajaron ocasionalmente en estados unidos. Era un maestro de la construcción, rebelde y adorador de la naturaleza. Tras abandonar el estudio de arquitectura de louis sullivan en el año 1893, wrightConsiderado el «mejor arquitecto estadounidense de todos los tiempos» en una encuesta realizada en 1991 por el instituto americano de arquitectos, frank lloyd wright era un verdadero visionario.
La arquitectura de frank lloyd wright: Haciendo uso de un estilo muy característico y diferente, siguiendo sus principios sobre la arquitectura orgánica. 10 edificios de este legendario arquitecto estadounidense. Frank lloyd wright frank lloyd wright es uno de los arquitectos más sobresalientes del mundo y del siglo xx. Él estudió ingeniería civil en la universidad de wisconsin en 1884. Genio destacado de la arquitectura del siglo xx, frank lloyd wright. El legendario frank lloyd wright es uno de los arquitectos más famosos de la historia. Creía en el poder de conectar la arquitectura con sus habitantes, afirmando una vez que «la arquitectura es la madre de todas las artes.

Genio destacado de la arquitectura del siglo xx, frank lloyd wright. Era un maestro de la construcción, rebelde y adorador de la naturaleza. Já pensou em aplicar traços marcantes de um dos maiores arquitetos da história em seus trabalhos? Discípulo de sullivan en chicago, no sólo superó la teorías de éste, sino que elaboró sus propias concepciones y además asimiló las enseñanzas de los grandes arquitectos europeos como le corbusier y mies van der rohe, que trabajaron ocasionalmente en estados unidos. Frank lloyd wright frank lloyd wright es uno de los arquitectos más sobresalientes del mundo y del siglo xx. El arquitecto estadounidense, nació el 8 de junio de 1867, en el centro de richland, wisconsin. Tras abandonar el estudio de arquitectura de louis sullivan en el año 1893, wright Taliesin, taliesin west, museo guggenheim, grady gammage memorial auditorium, unity temple, hollyhock house, fallingwater, robie house. Él estudió ingeniería civil en la universidad de wisconsin en 1884. 10 edificios de este legendario arquitecto estadounidense... Después de abandonar sus estudios en ingeniería, frank lloyd wright comenzó su carrera como arquitecto …
/PopeLeighey-148633867-56a02f683df78cafdaa06f90.jpg)
Era un maestro de la construcción, rebelde y adorador de la naturaleza... Já pensou em aplicar traços marcantes de um dos maiores arquitetos da história em seus trabalhos? Después de abandonar sus estudios en ingeniería, frank lloyd wright comenzó su carrera como arquitecto … Discípulo de sullivan en chicago, no sólo superó la teorías de éste, sino que elaboró sus propias concepciones y además asimiló las enseñanzas de los grandes arquitectos europeos como le corbusier y mies van der rohe, que trabajaron ocasionalmente en estados unidos. Es muy evidente la manera en que frank lloyd wright impone su propio estilo, para la década del siglo xx. Era un maestro de la construcción, rebelde y adorador de la naturaleza. Creía en el poder de conectar la arquitectura con sus habitantes, afirmando una vez que «la arquitectura es la madre de todas las artes. Haciendo uso de un estilo muy característico y diferente, siguiendo sus principios sobre la arquitectura orgánica. La arquitectura de frank lloyd wright: Frank lloyd wright foi um dos profissionais da área mais importantes dos estados unidos e do mundo... Tras abandonar el estudio de arquitectura de louis sullivan en el año 1893, wright

Considerado el «mejor arquitecto estadounidense de todos los tiempos» en una encuesta realizada en 1991 por el instituto americano de arquitectos, frank lloyd wright era un verdadero visionario. Taliesin, taliesin west, museo guggenheim, grady gammage memorial auditorium, unity temple, hollyhock house, fallingwater, robie house. Es muy evidente la manera en que frank lloyd wright impone su propio estilo, para la década del siglo xx... Tras abandonar el estudio de arquitectura de louis sullivan en el año 1893, wright

Creía en el poder de conectar la arquitectura con sus habitantes, afirmando una vez que «la arquitectura es la madre de todas las artes. .. Él estudió ingeniería civil en la universidad de wisconsin en 1884.

Haciendo uso de un estilo muy característico y diferente, siguiendo sus principios sobre la arquitectura orgánica. Genio destacado de la arquitectura del siglo xx, frank lloyd wright. 10 edificios de este legendario arquitecto estadounidense.. Frank lloyd wright foi um dos profissionais da área mais importantes dos estados unidos e do mundo.

Él estudió ingeniería civil en la universidad de wisconsin en 1884. Discípulo de sullivan en chicago, no sólo superó la teorías de éste, sino que elaboró sus propias concepciones y además asimiló las enseñanzas de los grandes arquitectos europeos como le corbusier y mies van der rohe, que trabajaron ocasionalmente en estados unidos. Era un maestro de la construcción, rebelde y adorador de la naturaleza. Considerado el «mejor arquitecto estadounidense de todos los tiempos» en una encuesta realizada en 1991 por el instituto americano de arquitectos, frank lloyd wright era un verdadero visionario.
10 edificios de este legendario arquitecto estadounidense. Genio destacado de la arquitectura del siglo xx, frank lloyd wright. Frank lloyd wright frank lloyd wright es uno de los arquitectos más sobresalientes del mundo y del siglo xx. 10 edificios de este legendario arquitecto estadounidense. Haciendo uso de un estilo muy característico y diferente, siguiendo sus principios sobre la arquitectura orgánica. Es muy evidente la manera en que frank lloyd wright impone su propio estilo, para la década del siglo xx. Frank lloyd wright foi um dos profissionais da área mais importantes dos estados unidos e do mundo. Después de abandonar sus estudios en ingeniería, frank lloyd wright comenzó su carrera como arquitecto … Discípulo de sullivan en chicago, no sólo superó la teorías de éste, sino que elaboró sus propias concepciones y además asimiló las enseñanzas de los grandes arquitectos europeos como le corbusier y mies van der rohe, que trabajaron ocasionalmente en estados unidos... Discípulo de sullivan en chicago, no sólo superó la teorías de éste, sino que elaboró sus propias concepciones y además asimiló las enseñanzas de los grandes arquitectos europeos como le corbusier y mies van der rohe, que trabajaron ocasionalmente en estados unidos.

El arquitecto estadounidense, nació el 8 de junio de 1867, en el centro de richland, wisconsin. 10 edificios de este legendario arquitecto estadounidense. Taliesin, taliesin west, museo guggenheim, grady gammage memorial auditorium, unity temple, hollyhock house, fallingwater, robie house. Discípulo de sullivan en chicago, no sólo superó la teorías de éste, sino que elaboró sus propias concepciones y además asimiló las enseñanzas de los grandes arquitectos europeos como le corbusier y mies van der rohe, que trabajaron ocasionalmente en estados unidos. La arquitectura de frank lloyd wright: Creía en el poder de conectar la arquitectura con sus habitantes, afirmando una vez que «la arquitectura es la madre de todas las artes. Es muy evidente la manera en que frank lloyd wright impone su propio estilo, para la década del siglo xx. Era un maestro de la construcción, rebelde y adorador de la naturaleza. Frank lloyd wright foi um dos profissionais da área mais importantes dos estados unidos e do mundo. El arquitecto estadounidense, nació el 8 de junio de 1867, en el centro de richland, wisconsin. La arquitectura de frank lloyd wright:

Él estudió ingeniería civil en la universidad de wisconsin en 1884. . Frank lloyd wright foi um dos profissionais da área mais importantes dos estados unidos e do mundo.

Discípulo de sullivan en chicago, no sólo superó la teorías de éste, sino que elaboró sus propias concepciones y además asimiló las enseñanzas de los grandes arquitectos europeos como le corbusier y mies van der rohe, que trabajaron ocasionalmente en estados unidos. Taliesin, taliesin west, museo guggenheim, grady gammage memorial auditorium, unity temple, hollyhock house, fallingwater, robie house.. Tras abandonar el estudio de arquitectura de louis sullivan en el año 1893, wright

El legendario frank lloyd wright es uno de los arquitectos más famosos de la historia. Considerado el «mejor arquitecto estadounidense de todos los tiempos» en una encuesta realizada en 1991 por el instituto americano de arquitectos, frank lloyd wright era un verdadero visionario. 10 edificios de este legendario arquitecto estadounidense. Discípulo de sullivan en chicago, no sólo superó la teorías de éste, sino que elaboró sus propias concepciones y además asimiló las enseñanzas de los grandes arquitectos europeos como le corbusier y mies van der rohe, que trabajaron ocasionalmente en estados unidos.. Considerado el «mejor arquitecto estadounidense de todos los tiempos» en una encuesta realizada en 1991 por el instituto americano de arquitectos, frank lloyd wright era un verdadero visionario.

Considerado el «mejor arquitecto estadounidense de todos los tiempos» en una encuesta realizada en 1991 por el instituto americano de arquitectos, frank lloyd wright era un verdadero visionario... Era un maestro de la construcción, rebelde y adorador de la naturaleza. Es muy evidente la manera en que frank lloyd wright impone su propio estilo, para la década del siglo xx.

Taliesin, taliesin west, museo guggenheim, grady gammage memorial auditorium, unity temple, hollyhock house, fallingwater, robie house... Considerado el «mejor arquitecto estadounidense de todos los tiempos» en una encuesta realizada en 1991 por el instituto americano de arquitectos, frank lloyd wright era un verdadero visionario. Discípulo de sullivan en chicago, no sólo superó la teorías de éste, sino que elaboró sus propias concepciones y además asimiló las enseñanzas de los grandes arquitectos europeos como le corbusier y mies van der rohe, que trabajaron ocasionalmente en estados unidos. El arquitecto estadounidense, nació el 8 de junio de 1867, en el centro de richland, wisconsin. Es muy evidente la manera en que frank lloyd wright impone su propio estilo, para la década del siglo xx. Él estudió ingeniería civil en la universidad de wisconsin en 1884. Después de abandonar sus estudios en ingeniería, frank lloyd wright comenzó su carrera como arquitecto … 10 edificios de este legendario arquitecto estadounidense. Es muy evidente la manera en que frank lloyd wright impone su propio estilo, para la década del siglo xx.

Frank lloyd wright frank lloyd wright es uno de los arquitectos más sobresalientes del mundo y del siglo xx. Frank lloyd wright foi um dos profissionais da área mais importantes dos estados unidos e do mundo.. Taliesin, taliesin west, museo guggenheim, grady gammage memorial auditorium, unity temple, hollyhock house, fallingwater, robie house.
Es muy evidente la manera en que frank lloyd wright impone su propio estilo, para la década del siglo xx. Discípulo de sullivan en chicago, no sólo superó la teorías de éste, sino que elaboró sus propias concepciones y además asimiló las enseñanzas de los grandes arquitectos europeos como le corbusier y mies van der rohe, que trabajaron ocasionalmente en estados unidos. Frank lloyd wright frank lloyd wright es uno de los arquitectos más sobresalientes del mundo y del siglo xx. Haciendo uso de un estilo muy característico y diferente, siguiendo sus principios sobre la arquitectura orgánica. La arquitectura de frank lloyd wright: Frank lloyd wright foi um dos profissionais da área mais importantes dos estados unidos e do mundo. Era un maestro de la construcción, rebelde y adorador de la naturaleza. El legendario frank lloyd wright es uno de los arquitectos más famosos de la historia. Já pensou em aplicar traços marcantes de um dos maiores arquitetos da história em seus trabalhos? El arquitecto estadounidense, nació el 8 de junio de 1867, en el centro de richland, wisconsin. Discípulo de sullivan en chicago, no sólo superó la teorías de éste, sino que elaboró sus propias concepciones y además asimiló las enseñanzas de los grandes arquitectos europeos como le corbusier y mies van der rohe, que trabajaron ocasionalmente en estados unidos.

Después de abandonar sus estudios en ingeniería, frank lloyd wright comenzó su carrera como arquitecto … Discípulo de sullivan en chicago, no sólo superó la teorías de éste, sino que elaboró sus propias concepciones y además asimiló las enseñanzas de los grandes arquitectos europeos como le corbusier y mies van der rohe, que trabajaron ocasionalmente en estados unidos. Era un maestro de la construcción, rebelde y adorador de la naturaleza. Él estudió ingeniería civil en la universidad de wisconsin en 1884. El legendario frank lloyd wright es uno de los arquitectos más famosos de la historia. La arquitectura de frank lloyd wright: 10 edificios de este legendario arquitecto estadounidense. Creía en el poder de conectar la arquitectura con sus habitantes, afirmando una vez que «la arquitectura es la madre de todas las artes... Tras abandonar el estudio de arquitectura de louis sullivan en el año 1893, wright

Já pensou em aplicar traços marcantes de um dos maiores arquitetos da história em seus trabalhos? El arquitecto estadounidense, nació el 8 de junio de 1867, en el centro de richland, wisconsin. La arquitectura de frank lloyd wright: Es muy evidente la manera en que frank lloyd wright impone su propio estilo, para la década del siglo xx. Era un maestro de la construcción, rebelde y adorador de la naturaleza. El legendario frank lloyd wright es uno de los arquitectos más famosos de la historia.

La arquitectura de frank lloyd wright:.. Taliesin, taliesin west, museo guggenheim, grady gammage memorial auditorium, unity temple, hollyhock house, fallingwater, robie house. Es muy evidente la manera en que frank lloyd wright impone su propio estilo, para la década del siglo xx. Frank lloyd wright frank lloyd wright es uno de los arquitectos más sobresalientes del mundo y del siglo xx. Discípulo de sullivan en chicago, no sólo superó la teorías de éste, sino que elaboró sus propias concepciones y además asimiló las enseñanzas de los grandes arquitectos europeos como le corbusier y mies van der rohe, que trabajaron ocasionalmente en estados unidos. Él estudió ingeniería civil en la universidad de wisconsin en 1884. Haciendo uso de un estilo muy característico y diferente, siguiendo sus principios sobre la arquitectura orgánica. Discípulo de sullivan en chicago, no sólo superó la teorías de éste, sino que elaboró sus propias concepciones y además asimiló las enseñanzas de los grandes arquitectos europeos como le corbusier y mies van der rohe, que trabajaron ocasionalmente en estados unidos. Considerado el «mejor arquitecto estadounidense de todos los tiempos» en una encuesta realizada en 1991 por el instituto americano de arquitectos, frank lloyd wright era un verdadero visionario. Creía en el poder de conectar la arquitectura con sus habitantes, afirmando una vez que «la arquitectura es la madre de todas las artes... Taliesin, taliesin west, museo guggenheim, grady gammage memorial auditorium, unity temple, hollyhock house, fallingwater, robie house.

Genio destacado de la arquitectura del siglo xx, frank lloyd wright... Frank lloyd wright frank lloyd wright es uno de los arquitectos más sobresalientes del mundo y del siglo xx. Tras abandonar el estudio de arquitectura de louis sullivan en el año 1893, wright Taliesin, taliesin west, museo guggenheim, grady gammage memorial auditorium, unity temple, hollyhock house, fallingwater, robie house. Él estudió ingeniería civil en la universidad de wisconsin en 1884. Discípulo de sullivan en chicago, no sólo superó la teorías de éste, sino que elaboró sus propias concepciones y además asimiló las enseñanzas de los grandes arquitectos europeos como le corbusier y mies van der rohe, que trabajaron ocasionalmente en estados unidos.

Considerado el «mejor arquitecto estadounidense de todos los tiempos» en una encuesta realizada en 1991 por el instituto americano de arquitectos, frank lloyd wright era un verdadero visionario.. Después de abandonar sus estudios en ingeniería, frank lloyd wright comenzó su carrera como arquitecto … Taliesin, taliesin west, museo guggenheim, grady gammage memorial auditorium, unity temple, hollyhock house, fallingwater, robie house. Considerado el «mejor arquitecto estadounidense de todos los tiempos» en una encuesta realizada en 1991 por el instituto americano de arquitectos, frank lloyd wright era un verdadero visionario. Tras abandonar el estudio de arquitectura de louis sullivan en el año 1893, wright El legendario frank lloyd wright es uno de los arquitectos más famosos de la historia. Discípulo de sullivan en chicago, no sólo superó la teorías de éste, sino que elaboró sus propias concepciones y además asimiló las enseñanzas de los grandes arquitectos europeos como le corbusier y mies van der rohe, que trabajaron ocasionalmente en estados unidos. Haciendo uso de un estilo muy característico y diferente, siguiendo sus principios sobre la arquitectura orgánica. Frank lloyd wright frank lloyd wright es uno de los arquitectos más sobresalientes del mundo y del siglo xx. Él estudió ingeniería civil en la universidad de wisconsin en 1884... Discípulo de sullivan en chicago, no sólo superó la teorías de éste, sino que elaboró sus propias concepciones y además asimiló las enseñanzas de los grandes arquitectos europeos como le corbusier y mies van der rohe, que trabajaron ocasionalmente en estados unidos.

Taliesin, taliesin west, museo guggenheim, grady gammage memorial auditorium, unity temple, hollyhock house, fallingwater, robie house. Discípulo de sullivan en chicago, no sólo superó la teorías de éste, sino que elaboró sus propias concepciones y además asimiló las enseñanzas de los grandes arquitectos europeos como le corbusier y mies van der rohe, que trabajaron ocasionalmente en estados unidos. Considerado el «mejor arquitecto estadounidense de todos los tiempos» en una encuesta realizada en 1991 por el instituto americano de arquitectos, frank lloyd wright era un verdadero visionario.

Taliesin, taliesin west, museo guggenheim, grady gammage memorial auditorium, unity temple, hollyhock house, fallingwater, robie house. Haciendo uso de un estilo muy característico y diferente, siguiendo sus principios sobre la arquitectura orgánica.. Es muy evidente la manera en que frank lloyd wright impone su propio estilo, para la década del siglo xx.

Es muy evidente la manera en que frank lloyd wright impone su propio estilo, para la década del siglo xx. Discípulo de sullivan en chicago, no sólo superó la teorías de éste, sino que elaboró sus propias concepciones y además asimiló las enseñanzas de los grandes arquitectos europeos como le corbusier y mies van der rohe, que trabajaron ocasionalmente en estados unidos. Discípulo de sullivan en chicago, no sólo superó la teorías de éste, sino que elaboró sus propias concepciones y además asimiló las enseñanzas de los grandes arquitectos europeos como le corbusier y mies van der rohe, que trabajaron ocasionalmente en estados unidos. 10 edificios de este legendario arquitecto estadounidense. Considerado el «mejor arquitecto estadounidense de todos los tiempos» en una encuesta realizada en 1991 por el instituto americano de arquitectos, frank lloyd wright era un verdadero visionario. Frank lloyd wright frank lloyd wright es uno de los arquitectos más sobresalientes del mundo y del siglo xx. Creía en el poder de conectar la arquitectura con sus habitantes, afirmando una vez que «la arquitectura es la madre de todas las artes. Era un maestro de la construcción, rebelde y adorador de la naturaleza. Discípulo de sullivan en chicago, no sólo superó la teorías de éste, sino que elaboró sus propias concepciones y además asimiló las enseñanzas de los grandes arquitectos europeos como le corbusier y mies van der rohe, que trabajaron ocasionalmente en estados unidos.

Considerado el «mejor arquitecto estadounidense de todos los tiempos» en una encuesta realizada en 1991 por el instituto americano de arquitectos, frank lloyd wright era un verdadero visionario.. Já pensou em aplicar traços marcantes de um dos maiores arquitetos da história em seus trabalhos? 10 edificios de este legendario arquitecto estadounidense. Já pensou em aplicar traços marcantes de um dos maiores arquitetos da história em seus trabalhos?

Es muy evidente la manera en que frank lloyd wright impone su propio estilo, para la década del siglo xx.. Era un maestro de la construcción, rebelde y adorador de la naturaleza. Tras abandonar el estudio de arquitectura de louis sullivan en el año 1893, wright Es muy evidente la manera en que frank lloyd wright impone su propio estilo, para la década del siglo xx. El legendario frank lloyd wright es uno de los arquitectos más famosos de la historia.. 10 edificios de este legendario arquitecto estadounidense.

Discípulo de sullivan en chicago, no sólo superó la teorías de éste, sino que elaboró sus propias concepciones y además asimiló las enseñanzas de los grandes arquitectos europeos como le corbusier y mies van der rohe, que trabajaron ocasionalmente en estados unidos. . Después de abandonar sus estudios en ingeniería, frank lloyd wright comenzó su carrera como arquitecto …

Já pensou em aplicar traços marcantes de um dos maiores arquitetos da história em seus trabalhos?.. Creía en el poder de conectar la arquitectura con sus habitantes, afirmando una vez que «la arquitectura es la madre de todas las artes. El arquitecto estadounidense, nació el 8 de junio de 1867, en el centro de richland, wisconsin. Considerado el «mejor arquitecto estadounidense de todos los tiempos» en una encuesta realizada en 1991 por el instituto americano de arquitectos, frank lloyd wright era un verdadero visionario. Frank lloyd wright frank lloyd wright es uno de los arquitectos más sobresalientes del mundo y del siglo xx. Era un maestro de la construcción, rebelde y adorador de la naturaleza. Discípulo de sullivan en chicago, no sólo superó la teorías de éste, sino que elaboró sus propias concepciones y además asimiló las enseñanzas de los grandes arquitectos europeos como le corbusier y mies van der rohe, que trabajaron ocasionalmente en estados unidos. Taliesin, taliesin west, museo guggenheim, grady gammage memorial auditorium, unity temple, hollyhock house, fallingwater, robie house. Genio destacado de la arquitectura del siglo xx, frank lloyd wright. La arquitectura de frank lloyd wright:. Era un maestro de la construcción, rebelde y adorador de la naturaleza.

Él estudió ingeniería civil en la universidad de wisconsin en 1884.. La arquitectura de frank lloyd wright: Después de abandonar sus estudios en ingeniería, frank lloyd wright comenzó su carrera como arquitecto …. Taliesin, taliesin west, museo guggenheim, grady gammage memorial auditorium, unity temple, hollyhock house, fallingwater, robie house.

Considerado el «mejor arquitecto estadounidense de todos los tiempos» en una encuesta realizada en 1991 por el instituto americano de arquitectos, frank lloyd wright era un verdadero visionario... El legendario frank lloyd wright es uno de los arquitectos más famosos de la historia. Creía en el poder de conectar la arquitectura con sus habitantes, afirmando una vez que «la arquitectura es la madre de todas las artes. El arquitecto estadounidense, nació el 8 de junio de 1867, en el centro de richland, wisconsin. Frank lloyd wright frank lloyd wright es uno de los arquitectos más sobresalientes del mundo y del siglo xx. Era un maestro de la construcción, rebelde y adorador de la naturaleza.. Considerado el «mejor arquitecto estadounidense de todos los tiempos» en una encuesta realizada en 1991 por el instituto americano de arquitectos, frank lloyd wright era un verdadero visionario.

Él estudió ingeniería civil en la universidad de wisconsin en 1884. Él estudió ingeniería civil en la universidad de wisconsin en 1884. Discípulo de sullivan en chicago, no sólo superó la teorías de éste, sino que elaboró sus propias concepciones y además asimiló las enseñanzas de los grandes arquitectos europeos como le corbusier y mies van der rohe, que trabajaron ocasionalmente en estados unidos. 10 edificios de este legendario arquitecto estadounidense. Tras abandonar el estudio de arquitectura de louis sullivan en el año 1893, wright Genio destacado de la arquitectura del siglo xx, frank lloyd wright. El arquitecto estadounidense, nació el 8 de junio de 1867, en el centro de richland, wisconsin... Já pensou em aplicar traços marcantes de um dos maiores arquitetos da história em seus trabalhos?

Discípulo de sullivan en chicago, no sólo superó la teorías de éste, sino que elaboró sus propias concepciones y además asimiló las enseñanzas de los grandes arquitectos europeos como le corbusier y mies van der rohe, que trabajaron ocasionalmente en estados unidos. Já pensou em aplicar traços marcantes de um dos maiores arquitetos da história em seus trabalhos? Haciendo uso de un estilo muy característico y diferente, siguiendo sus principios sobre la arquitectura orgánica. Frank lloyd wright foi um dos profissionais da área mais importantes dos estados unidos e do mundo. Taliesin, taliesin west, museo guggenheim, grady gammage memorial auditorium, unity temple, hollyhock house, fallingwater, robie house. Discípulo de sullivan en chicago, no sólo superó la teorías de éste, sino que elaboró sus propias concepciones y además asimiló las enseñanzas de los grandes arquitectos europeos como le corbusier y mies van der rohe, que trabajaron ocasionalmente en estados unidos. Frank lloyd wright frank lloyd wright es uno de los arquitectos más sobresalientes del mundo y del siglo xx. Tras abandonar el estudio de arquitectura de louis sullivan en el año 1893, wright Discípulo de sullivan en chicago, no sólo superó la teorías de éste, sino que elaboró sus propias concepciones y además asimiló las enseñanzas de los grandes arquitectos europeos como le corbusier y mies van der rohe, que trabajaron ocasionalmente en estados unidos. Creía en el poder de conectar la arquitectura con sus habitantes, afirmando una vez que «la arquitectura es la madre de todas las artes. Era un maestro de la construcción, rebelde y adorador de la naturaleza.. Haciendo uso de un estilo muy característico y diferente, siguiendo sus principios sobre la arquitectura orgánica.

Discípulo de sullivan en chicago, no sólo superó la teorías de éste, sino que elaboró sus propias concepciones y además asimiló las enseñanzas de los grandes arquitectos europeos como le corbusier y mies van der rohe, que trabajaron ocasionalmente en estados unidos. .. Tras abandonar el estudio de arquitectura de louis sullivan en el año 1893, wright

10 edificios de este legendario arquitecto estadounidense... . Frank lloyd wright foi um dos profissionais da área mais importantes dos estados unidos e do mundo.

Discípulo de sullivan en chicago, no sólo superó la teorías de éste, sino que elaboró sus propias concepciones y además asimiló las enseñanzas de los grandes arquitectos europeos como le corbusier y mies van der rohe, que trabajaron ocasionalmente en estados unidos. Después de abandonar sus estudios en ingeniería, frank lloyd wright comenzó su carrera como arquitecto … Era un maestro de la construcción, rebelde y adorador de la naturaleza. Es muy evidente la manera en que frank lloyd wright impone su propio estilo, para la década del siglo xx. Él estudió ingeniería civil en la universidad de wisconsin en 1884. Discípulo de sullivan en chicago, no sólo superó la teorías de éste, sino que elaboró sus propias concepciones y además asimiló las enseñanzas de los grandes arquitectos europeos como le corbusier y mies van der rohe, que trabajaron ocasionalmente en estados unidos. 10 edificios de este legendario arquitecto estadounidense. Tras abandonar el estudio de arquitectura de louis sullivan en el año 1893, wright La arquitectura de frank lloyd wright: El arquitecto estadounidense, nació el 8 de junio de 1867, en el centro de richland, wisconsin. Já pensou em aplicar traços marcantes de um dos maiores arquitetos da história em seus trabalhos?. Considerado el «mejor arquitecto estadounidense de todos los tiempos» en una encuesta realizada en 1991 por el instituto americano de arquitectos, frank lloyd wright era un verdadero visionario.

Taliesin, taliesin west, museo guggenheim, grady gammage memorial auditorium, unity temple, hollyhock house, fallingwater, robie house... La arquitectura de frank lloyd wright: Tras abandonar el estudio de arquitectura de louis sullivan en el año 1893, wright Creía en el poder de conectar la arquitectura con sus habitantes, afirmando una vez que «la arquitectura es la madre de todas las artes. El arquitecto estadounidense, nació el 8 de junio de 1867, en el centro de richland, wisconsin. Él estudió ingeniería civil en la universidad de wisconsin en 1884. Considerado el «mejor arquitecto estadounidense de todos los tiempos» en una encuesta realizada en 1991 por el instituto americano de arquitectos, frank lloyd wright era un verdadero visionario.

Era un maestro de la construcción, rebelde y adorador de la naturaleza... El legendario frank lloyd wright es uno de los arquitectos más famosos de la historia. Discípulo de sullivan en chicago, no sólo superó la teorías de éste, sino que elaboró sus propias concepciones y además asimiló las enseñanzas de los grandes arquitectos europeos como le corbusier y mies van der rohe, que trabajaron ocasionalmente en estados unidos. Frank lloyd wright foi um dos profissionais da área mais importantes dos estados unidos e do mundo. El arquitecto estadounidense, nació el 8 de junio de 1867, en el centro de richland, wisconsin.

Taliesin, taliesin west, museo guggenheim, grady gammage memorial auditorium, unity temple, hollyhock house, fallingwater, robie house. Discípulo de sullivan en chicago, no sólo superó la teorías de éste, sino que elaboró sus propias concepciones y además asimiló las enseñanzas de los grandes arquitectos europeos como le corbusier y mies van der rohe, que trabajaron ocasionalmente en estados unidos. El arquitecto estadounidense, nació el 8 de junio de 1867, en el centro de richland, wisconsin. Era un maestro de la construcción, rebelde y adorador de la naturaleza. Creía en el poder de conectar la arquitectura con sus habitantes, afirmando una vez que «la arquitectura es la madre de todas las artes. La arquitectura de frank lloyd wright: Es muy evidente la manera en que frank lloyd wright impone su propio estilo, para la década del siglo xx. Después de abandonar sus estudios en ingeniería, frank lloyd wright comenzó su carrera como arquitecto … Taliesin, taliesin west, museo guggenheim, grady gammage memorial auditorium, unity temple, hollyhock house, fallingwater, robie house. Él estudió ingeniería civil en la universidad de wisconsin en 1884. Frank lloyd wright frank lloyd wright es uno de los arquitectos más sobresalientes del mundo y del siglo xx. Considerado el «mejor arquitecto estadounidense de todos los tiempos» en una encuesta realizada en 1991 por el instituto americano de arquitectos, frank lloyd wright era un verdadero visionario.

Taliesin, taliesin west, museo guggenheim, grady gammage memorial auditorium, unity temple, hollyhock house, fallingwater, robie house.. 10 edificios de este legendario arquitecto estadounidense. Después de abandonar sus estudios en ingeniería, frank lloyd wright comenzó su carrera como arquitecto … Considerado el «mejor arquitecto estadounidense de todos los tiempos» en una encuesta realizada en 1991 por el instituto americano de arquitectos, frank lloyd wright era un verdadero visionario. La arquitectura de frank lloyd wright: Él estudió ingeniería civil en la universidad de wisconsin en 1884. Considerado el «mejor arquitecto estadounidense de todos los tiempos» en una encuesta realizada en 1991 por el instituto americano de arquitectos, frank lloyd wright era un verdadero visionario.

Él estudió ingeniería civil en la universidad de wisconsin en 1884. Já pensou em aplicar traços marcantes de um dos maiores arquitetos da história em seus trabalhos? Discípulo de sullivan en chicago, no sólo superó la teorías de éste, sino que elaboró sus propias concepciones y además asimiló las enseñanzas de los grandes arquitectos europeos como le corbusier y mies van der rohe, que trabajaron ocasionalmente en estados unidos. Taliesin, taliesin west, museo guggenheim, grady gammage memorial auditorium, unity temple, hollyhock house, fallingwater, robie house.

Haciendo uso de un estilo muy característico y diferente, siguiendo sus principios sobre la arquitectura orgánica. Discípulo de sullivan en chicago, no sólo superó la teorías de éste, sino que elaboró sus propias concepciones y además asimiló las enseñanzas de los grandes arquitectos europeos como le corbusier y mies van der rohe, que trabajaron ocasionalmente en estados unidos. 10 edificios de este legendario arquitecto estadounidense. Discípulo de sullivan en chicago, no sólo superó la teorías de éste, sino que elaboró sus propias concepciones y además asimiló las enseñanzas de los grandes arquitectos europeos como le corbusier y mies van der rohe, que trabajaron ocasionalmente en estados unidos. Já pensou em aplicar traços marcantes de um dos maiores arquitetos da história em seus trabalhos? Es muy evidente la manera en que frank lloyd wright impone su propio estilo, para la década del siglo xx. Frank lloyd wright foi um dos profissionais da área mais importantes dos estados unidos e do mundo. Después de abandonar sus estudios en ingeniería, frank lloyd wright comenzó su carrera como arquitecto … El arquitecto estadounidense, nació el 8 de junio de 1867, en el centro de richland, wisconsin. Era un maestro de la construcción, rebelde y adorador de la naturaleza.. Es muy evidente la manera en que frank lloyd wright impone su propio estilo, para la década del siglo xx.

Frank lloyd wright frank lloyd wright es uno de los arquitectos más sobresalientes del mundo y del siglo xx. . El arquitecto estadounidense, nació el 8 de junio de 1867, en el centro de richland, wisconsin.

Creía en el poder de conectar la arquitectura con sus habitantes, afirmando una vez que «la arquitectura es la madre de todas las artes... Genio destacado de la arquitectura del siglo xx, frank lloyd wright. Tras abandonar el estudio de arquitectura de louis sullivan en el año 1893, wright Frank lloyd wright foi um dos profissionais da área mais importantes dos estados unidos e do mundo. Frank lloyd wright frank lloyd wright es uno de los arquitectos más sobresalientes del mundo y del siglo xx. Discípulo de sullivan en chicago, no sólo superó la teorías de éste, sino que elaboró sus propias concepciones y además asimiló las enseñanzas de los grandes arquitectos europeos como le corbusier y mies van der rohe, que trabajaron ocasionalmente en estados unidos... Era un maestro de la construcción, rebelde y adorador de la naturaleza.

La arquitectura de frank lloyd wright:.. Frank lloyd wright frank lloyd wright es uno de los arquitectos más sobresalientes del mundo y del siglo xx. 10 edificios de este legendario arquitecto estadounidense.. Considerado el «mejor arquitecto estadounidense de todos los tiempos» en una encuesta realizada en 1991 por el instituto americano de arquitectos, frank lloyd wright era un verdadero visionario.

Creía en el poder de conectar la arquitectura con sus habitantes, afirmando una vez que «la arquitectura es la madre de todas las artes.. Tras abandonar el estudio de arquitectura de louis sullivan en el año 1893, wright Él estudió ingeniería civil en la universidad de wisconsin en 1884. Considerado el «mejor arquitecto estadounidense de todos los tiempos» en una encuesta realizada en 1991 por el instituto americano de arquitectos, frank lloyd wright era un verdadero visionario. Frank lloyd wright frank lloyd wright es uno de los arquitectos más sobresalientes del mundo y del siglo xx. Era un maestro de la construcción, rebelde y adorador de la naturaleza. Taliesin, taliesin west, museo guggenheim, grady gammage memorial auditorium, unity temple, hollyhock house, fallingwater, robie house.. Taliesin, taliesin west, museo guggenheim, grady gammage memorial auditorium, unity temple, hollyhock house, fallingwater, robie house.

Es muy evidente la manera en que frank lloyd wright impone su propio estilo, para la década del siglo xx. Creía en el poder de conectar la arquitectura con sus habitantes, afirmando una vez que «la arquitectura es la madre de todas las artes. Es muy evidente la manera en que frank lloyd wright impone su propio estilo, para la década del siglo xx. Después de abandonar sus estudios en ingeniería, frank lloyd wright comenzó su carrera como arquitecto …

El arquitecto estadounidense, nació el 8 de junio de 1867, en el centro de richland, wisconsin. Él estudió ingeniería civil en la universidad de wisconsin en 1884. Discípulo de sullivan en chicago, no sólo superó la teorías de éste, sino que elaboró sus propias concepciones y además asimiló las enseñanzas de los grandes arquitectos europeos como le corbusier y mies van der rohe, que trabajaron ocasionalmente en estados unidos. Já pensou em aplicar traços marcantes de um dos maiores arquitetos da história em seus trabalhos? Frank lloyd wright foi um dos profissionais da área mais importantes dos estados unidos e do mundo. La arquitectura de frank lloyd wright: Discípulo de sullivan en chicago, no sólo superó la teorías de éste, sino que elaboró sus propias concepciones y además asimiló las enseñanzas de los grandes arquitectos europeos como le corbusier y mies van der rohe, que trabajaron ocasionalmente en estados unidos. 10 edificios de este legendario arquitecto estadounidense.. Discípulo de sullivan en chicago, no sólo superó la teorías de éste, sino que elaboró sus propias concepciones y además asimiló las enseñanzas de los grandes arquitectos europeos como le corbusier y mies van der rohe, que trabajaron ocasionalmente en estados unidos.

Haciendo uso de un estilo muy característico y diferente, siguiendo sus principios sobre la arquitectura orgánica.. La arquitectura de frank lloyd wright: Tras abandonar el estudio de arquitectura de louis sullivan en el año 1893, wright
Discípulo de sullivan en chicago, no sólo superó la teorías de éste, sino que elaboró sus propias concepciones y además asimiló las enseñanzas de los grandes arquitectos europeos como le corbusier y mies van der rohe, que trabajaron ocasionalmente en estados unidos. Él estudió ingeniería civil en la universidad de wisconsin en 1884. Frank lloyd wright frank lloyd wright es uno de los arquitectos más sobresalientes del mundo y del siglo xx. Frank lloyd wright foi um dos profissionais da área mais importantes dos estados unidos e do mundo. Haciendo uso de un estilo muy característico y diferente, siguiendo sus principios sobre la arquitectura orgánica. La arquitectura de frank lloyd wright: Genio destacado de la arquitectura del siglo xx, frank lloyd wright. Discípulo de sullivan en chicago, no sólo superó la teorías de éste, sino que elaboró sus propias concepciones y además asimiló las enseñanzas de los grandes arquitectos europeos como le corbusier y mies van der rohe, que trabajaron ocasionalmente en estados unidos. El arquitecto estadounidense, nació el 8 de junio de 1867, en el centro de richland, wisconsin. Considerado el «mejor arquitecto estadounidense de todos los tiempos» en una encuesta realizada en 1991 por el instituto americano de arquitectos, frank lloyd wright era un verdadero visionario. Es muy evidente la manera en que frank lloyd wright impone su propio estilo, para la década del siglo xx... Discípulo de sullivan en chicago, no sólo superó la teorías de éste, sino que elaboró sus propias concepciones y además asimiló las enseñanzas de los grandes arquitectos europeos como le corbusier y mies van der rohe, que trabajaron ocasionalmente en estados unidos.

Já pensou em aplicar traços marcantes de um dos maiores arquitetos da história em seus trabalhos?.. El legendario frank lloyd wright es uno de los arquitectos más famosos de la historia. Já pensou em aplicar traços marcantes de um dos maiores arquitetos da história em seus trabalhos?

Después de abandonar sus estudios en ingeniería, frank lloyd wright comenzó su carrera como arquitecto … Él estudió ingeniería civil en la universidad de wisconsin en 1884. Era un maestro de la construcción, rebelde y adorador de la naturaleza. Tras abandonar el estudio de arquitectura de louis sullivan en el año 1893, wright La arquitectura de frank lloyd wright: Haciendo uso de un estilo muy característico y diferente, siguiendo sus principios sobre la arquitectura orgánica. Creía en el poder de conectar la arquitectura con sus habitantes, afirmando una vez que «la arquitectura es la madre de todas las artes.. La arquitectura de frank lloyd wright:

Era un maestro de la construcción, rebelde y adorador de la naturaleza. Haciendo uso de un estilo muy característico y diferente, siguiendo sus principios sobre la arquitectura orgánica. Discípulo de sullivan en chicago, no sólo superó la teorías de éste, sino que elaboró sus propias concepciones y además asimiló las enseñanzas de los grandes arquitectos europeos como le corbusier y mies van der rohe, que trabajaron ocasionalmente en estados unidos. Era un maestro de la construcción, rebelde y adorador de la naturaleza. La arquitectura de frank lloyd wright: 10 edificios de este legendario arquitecto estadounidense. Es muy evidente la manera en que frank lloyd wright impone su propio estilo, para la década del siglo xx. 10 edificios de este legendario arquitecto estadounidense.

Era un maestro de la construcción, rebelde y adorador de la naturaleza. .. Taliesin, taliesin west, museo guggenheim, grady gammage memorial auditorium, unity temple, hollyhock house, fallingwater, robie house.

Genio destacado de la arquitectura del siglo xx, frank lloyd wright. Creía en el poder de conectar la arquitectura con sus habitantes, afirmando una vez que «la arquitectura es la madre de todas las artes. Tras abandonar el estudio de arquitectura de louis sullivan en el año 1893, wright Genio destacado de la arquitectura del siglo xx, frank lloyd wright. Era un maestro de la construcción, rebelde y adorador de la naturaleza. El arquitecto estadounidense, nació el 8 de junio de 1867, en el centro de richland, wisconsin. Es muy evidente la manera en que frank lloyd wright impone su propio estilo, para la década del siglo xx. Él estudió ingeniería civil en la universidad de wisconsin en 1884. Já pensou em aplicar traços marcantes de um dos maiores arquitetos da história em seus trabalhos? La arquitectura de frank lloyd wright:. Haciendo uso de un estilo muy característico y diferente, siguiendo sus principios sobre la arquitectura orgánica.

Frank lloyd wright foi um dos profissionais da área mais importantes dos estados unidos e do mundo... Creía en el poder de conectar la arquitectura con sus habitantes, afirmando una vez que «la arquitectura es la madre de todas las artes. Tras abandonar el estudio de arquitectura de louis sullivan en el año 1893, wright. 10 edificios de este legendario arquitecto estadounidense.

10 edificios de este legendario arquitecto estadounidense.. Considerado el «mejor arquitecto estadounidense de todos los tiempos» en una encuesta realizada en 1991 por el instituto americano de arquitectos, frank lloyd wright era un verdadero visionario. Es muy evidente la manera en que frank lloyd wright impone su propio estilo, para la década del siglo xx. Taliesin, taliesin west, museo guggenheim, grady gammage memorial auditorium, unity temple, hollyhock house, fallingwater, robie house. Genio destacado de la arquitectura del siglo xx, frank lloyd wright. 10 edificios de este legendario arquitecto estadounidense. Él estudió ingeniería civil en la universidad de wisconsin en 1884. Haciendo uso de un estilo muy característico y diferente, siguiendo sus principios sobre la arquitectura orgánica. Discípulo de sullivan en chicago, no sólo superó la teorías de éste, sino que elaboró sus propias concepciones y además asimiló las enseñanzas de los grandes arquitectos europeos como le corbusier y mies van der rohe, que trabajaron ocasionalmente en estados unidos. La arquitectura de frank lloyd wright:. Genio destacado de la arquitectura del siglo xx, frank lloyd wright.

Después de abandonar sus estudios en ingeniería, frank lloyd wright comenzó su carrera como arquitecto … Creía en el poder de conectar la arquitectura con sus habitantes, afirmando una vez que «la arquitectura es la madre de todas las artes. Era un maestro de la construcción, rebelde y adorador de la naturaleza. Genio destacado de la arquitectura del siglo xx, frank lloyd wright.. El legendario frank lloyd wright es uno de los arquitectos más famosos de la historia.

Considerado el «mejor arquitecto estadounidense de todos los tiempos» en una encuesta realizada en 1991 por el instituto americano de arquitectos, frank lloyd wright era un verdadero visionario. Tras abandonar el estudio de arquitectura de louis sullivan en el año 1893, wright Genio destacado de la arquitectura del siglo xx, frank lloyd wright. Discípulo de sullivan en chicago, no sólo superó la teorías de éste, sino que elaboró sus propias concepciones y además asimiló las enseñanzas de los grandes arquitectos europeos como le corbusier y mies van der rohe, que trabajaron ocasionalmente en estados unidos. Taliesin, taliesin west, museo guggenheim, grady gammage memorial auditorium, unity temple, hollyhock house, fallingwater, robie house. Frank lloyd wright foi um dos profissionais da área mais importantes dos estados unidos e do mundo. Haciendo uso de un estilo muy característico y diferente, siguiendo sus principios sobre la arquitectura orgánica. Él estudió ingeniería civil en la universidad de wisconsin en 1884... 10 edificios de este legendario arquitecto estadounidense.

Haciendo uso de un estilo muy característico y diferente, siguiendo sus principios sobre la arquitectura orgánica. Frank lloyd wright frank lloyd wright es uno de los arquitectos más sobresalientes del mundo y del siglo xx. Creía en el poder de conectar la arquitectura con sus habitantes, afirmando una vez que «la arquitectura es la madre de todas las artes. Tras abandonar el estudio de arquitectura de louis sullivan en el año 1893, wright Es muy evidente la manera en que frank lloyd wright impone su propio estilo, para la década del siglo xx. La arquitectura de frank lloyd wright: Discípulo de sullivan en chicago, no sólo superó la teorías de éste, sino que elaboró sus propias concepciones y además asimiló las enseñanzas de los grandes arquitectos europeos como le corbusier y mies van der rohe, que trabajaron ocasionalmente en estados unidos. Era un maestro de la construcción, rebelde y adorador de la naturaleza. Genio destacado de la arquitectura del siglo xx, frank lloyd wright. Después de abandonar sus estudios en ingeniería, frank lloyd wright comenzó su carrera como arquitecto … 10 edificios de este legendario arquitecto estadounidense.

Já pensou em aplicar traços marcantes de um dos maiores arquitetos da história em seus trabalhos?.. Era un maestro de la construcción, rebelde y adorador de la naturaleza. Haciendo uso de un estilo muy característico y diferente, siguiendo sus principios sobre la arquitectura orgánica. Él estudió ingeniería civil en la universidad de wisconsin en 1884. Tras abandonar el estudio de arquitectura de louis sullivan en el año 1893, wright Taliesin, taliesin west, museo guggenheim, grady gammage memorial auditorium, unity temple, hollyhock house, fallingwater, robie house. La arquitectura de frank lloyd wright: Genio destacado de la arquitectura del siglo xx, frank lloyd wright. Creía en el poder de conectar la arquitectura con sus habitantes, afirmando una vez que «la arquitectura es la madre de todas las artes.

Já pensou em aplicar traços marcantes de um dos maiores arquitetos da história em seus trabalhos? Genio destacado de la arquitectura del siglo xx, frank lloyd wright. Considerado el «mejor arquitecto estadounidense de todos los tiempos» en una encuesta realizada en 1991 por el instituto americano de arquitectos, frank lloyd wright era un verdadero visionario. El legendario frank lloyd wright es uno de los arquitectos más famosos de la historia. La arquitectura de frank lloyd wright: Discípulo de sullivan en chicago, no sólo superó la teorías de éste, sino que elaboró sus propias concepciones y además asimiló las enseñanzas de los grandes arquitectos europeos como le corbusier y mies van der rohe, que trabajaron ocasionalmente en estados unidos. Haciendo uso de un estilo muy característico y diferente, siguiendo sus principios sobre la arquitectura orgánica. La arquitectura de frank lloyd wright:

Era un maestro de la construcción, rebelde y adorador de la naturaleza. Discípulo de sullivan en chicago, no sólo superó la teorías de éste, sino que elaboró sus propias concepciones y además asimiló las enseñanzas de los grandes arquitectos europeos como le corbusier y mies van der rohe, que trabajaron ocasionalmente en estados unidos. Después de abandonar sus estudios en ingeniería, frank lloyd wright comenzó su carrera como arquitecto … Haciendo uso de un estilo muy característico y diferente, siguiendo sus principios sobre la arquitectura orgánica. Já pensou em aplicar traços marcantes de um dos maiores arquitetos da história em seus trabalhos? Frank lloyd wright foi um dos profissionais da área mais importantes dos estados unidos e do mundo. Genio destacado de la arquitectura del siglo xx, frank lloyd wright. Discípulo de sullivan en chicago, no sólo superó la teorías de éste, sino que elaboró sus propias concepciones y además asimiló las enseñanzas de los grandes arquitectos europeos como le corbusier y mies van der rohe, que trabajaron ocasionalmente en estados unidos. Frank lloyd wright frank lloyd wright es uno de los arquitectos más sobresalientes del mundo y del siglo xx. Frank lloyd wright frank lloyd wright es uno de los arquitectos más sobresalientes del mundo y del siglo xx.

Considerado el «mejor arquitecto estadounidense de todos los tiempos» en una encuesta realizada en 1991 por el instituto americano de arquitectos, frank lloyd wright era un verdadero visionario.. La arquitectura de frank lloyd wright: Frank lloyd wright foi um dos profissionais da área mais importantes dos estados unidos e do mundo. Considerado el «mejor arquitecto estadounidense de todos los tiempos» en una encuesta realizada en 1991 por el instituto americano de arquitectos, frank lloyd wright era un verdadero visionario. Já pensou em aplicar traços marcantes de um dos maiores arquitetos da história em seus trabalhos? Discípulo de sullivan en chicago, no sólo superó la teorías de éste, sino que elaboró sus propias concepciones y además asimiló las enseñanzas de los grandes arquitectos europeos como le corbusier y mies van der rohe, que trabajaron ocasionalmente en estados unidos. 10 edificios de este legendario arquitecto estadounidense. El legendario frank lloyd wright es uno de los arquitectos más famosos de la historia.

Considerado el «mejor arquitecto estadounidense de todos los tiempos» en una encuesta realizada en 1991 por el instituto americano de arquitectos, frank lloyd wright era un verdadero visionario... Era un maestro de la construcción, rebelde y adorador de la naturaleza. Discípulo de sullivan en chicago, no sólo superó la teorías de éste, sino que elaboró sus propias concepciones y además asimiló las enseñanzas de los grandes arquitectos europeos como le corbusier y mies van der rohe, que trabajaron ocasionalmente en estados unidos. Él estudió ingeniería civil en la universidad de wisconsin en 1884. Genio destacado de la arquitectura del siglo xx, frank lloyd wright. 10 edificios de este legendario arquitecto estadounidense. Discípulo de sullivan en chicago, no sólo superó la teorías de éste, sino que elaboró sus propias concepciones y además asimiló las enseñanzas de los grandes arquitectos europeos como le corbusier y mies van der rohe, que trabajaron ocasionalmente en estados unidos. El arquitecto estadounidense, nació el 8 de junio de 1867, en el centro de richland, wisconsin. Frank lloyd wright frank lloyd wright es uno de los arquitectos más sobresalientes del mundo y del siglo xx.. Creía en el poder de conectar la arquitectura con sus habitantes, afirmando una vez que «la arquitectura es la madre de todas las artes.

Después de abandonar sus estudios en ingeniería, frank lloyd wright comenzó su carrera como arquitecto ….. Después de abandonar sus estudios en ingeniería, frank lloyd wright comenzó su carrera como arquitecto … Já pensou em aplicar traços marcantes de um dos maiores arquitetos da história em seus trabalhos? El arquitecto estadounidense, nació el 8 de junio de 1867, en el centro de richland, wisconsin. Él estudió ingeniería civil en la universidad de wisconsin en 1884. Genio destacado de la arquitectura del siglo xx, frank lloyd wright. Haciendo uso de un estilo muy característico y diferente, siguiendo sus principios sobre la arquitectura orgánica. La arquitectura de frank lloyd wright: El legendario frank lloyd wright es uno de los arquitectos más famosos de la historia. Discípulo de sullivan en chicago, no sólo superó la teorías de éste, sino que elaboró sus propias concepciones y además asimiló las enseñanzas de los grandes arquitectos europeos como le corbusier y mies van der rohe, que trabajaron ocasionalmente en estados unidos.. Es muy evidente la manera en que frank lloyd wright impone su propio estilo, para la década del siglo xx.

Já pensou em aplicar traços marcantes de um dos maiores arquitetos da história em seus trabalhos?.. La arquitectura de frank lloyd wright: Discípulo de sullivan en chicago, no sólo superó la teorías de éste, sino que elaboró sus propias concepciones y además asimiló las enseñanzas de los grandes arquitectos europeos como le corbusier y mies van der rohe, que trabajaron ocasionalmente en estados unidos. Era un maestro de la construcción, rebelde y adorador de la naturaleza. Tras abandonar el estudio de arquitectura de louis sullivan en el año 1893, wright Taliesin, taliesin west, museo guggenheim, grady gammage memorial auditorium, unity temple, hollyhock house, fallingwater, robie house. Genio destacado de la arquitectura del siglo xx, frank lloyd wright. Frank lloyd wright foi um dos profissionais da área mais importantes dos estados unidos e do mundo. El arquitecto estadounidense, nació el 8 de junio de 1867, en el centro de richland, wisconsin... Genio destacado de la arquitectura del siglo xx, frank lloyd wright.

Tras abandonar el estudio de arquitectura de louis sullivan en el año 1893, wright Frank lloyd wright frank lloyd wright es uno de los arquitectos más sobresalientes del mundo y del siglo xx. Já pensou em aplicar traços marcantes de um dos maiores arquitetos da história em seus trabalhos? Taliesin, taliesin west, museo guggenheim, grady gammage memorial auditorium, unity temple, hollyhock house, fallingwater, robie house. El legendario frank lloyd wright es uno de los arquitectos más famosos de la historia. 10 edificios de este legendario arquitecto estadounidense. Es muy evidente la manera en que frank lloyd wright impone su propio estilo, para la década del siglo xx. Él estudió ingeniería civil en la universidad de wisconsin en 1884. Después de abandonar sus estudios en ingeniería, frank lloyd wright comenzó su carrera como arquitecto … Genio destacado de la arquitectura del siglo xx, frank lloyd wright. La arquitectura de frank lloyd wright:.. Creía en el poder de conectar la arquitectura con sus habitantes, afirmando una vez que «la arquitectura es la madre de todas las artes.

Es muy evidente la manera en que frank lloyd wright impone su propio estilo, para la década del siglo xx. Creía en el poder de conectar la arquitectura con sus habitantes, afirmando una vez que «la arquitectura es la madre de todas las artes. Genio destacado de la arquitectura del siglo xx, frank lloyd wright. El legendario frank lloyd wright es uno de los arquitectos más famosos de la historia. Frank lloyd wright foi um dos profissionais da área mais importantes dos estados unidos e do mundo. El arquitecto estadounidense, nació el 8 de junio de 1867, en el centro de richland, wisconsin. La arquitectura de frank lloyd wright: Discípulo de sullivan en chicago, no sólo superó la teorías de éste, sino que elaboró sus propias concepciones y además asimiló las enseñanzas de los grandes arquitectos europeos como le corbusier y mies van der rohe, que trabajaron ocasionalmente en estados unidos. El arquitecto estadounidense, nació el 8 de junio de 1867, en el centro de richland, wisconsin.

Considerado el «mejor arquitecto estadounidense de todos los tiempos» en una encuesta realizada en 1991 por el instituto americano de arquitectos, frank lloyd wright era un verdadero visionario. Discípulo de sullivan en chicago, no sólo superó la teorías de éste, sino que elaboró sus propias concepciones y además asimiló las enseñanzas de los grandes arquitectos europeos como le corbusier y mies van der rohe, que trabajaron ocasionalmente en estados unidos. Es muy evidente la manera en que frank lloyd wright impone su propio estilo, para la década del siglo xx. El arquitecto estadounidense, nació el 8 de junio de 1867, en el centro de richland, wisconsin. Tras abandonar el estudio de arquitectura de louis sullivan en el año 1893, wright Considerado el «mejor arquitecto estadounidense de todos los tiempos» en una encuesta realizada en 1991 por el instituto americano de arquitectos, frank lloyd wright era un verdadero visionario. Era un maestro de la construcción, rebelde y adorador de la naturaleza. Haciendo uso de un estilo muy característico y diferente, siguiendo sus principios sobre la arquitectura orgánica. La arquitectura de frank lloyd wright: La arquitectura de frank lloyd wright:

Frank lloyd wright foi um dos profissionais da área mais importantes dos estados unidos e do mundo. Después de abandonar sus estudios en ingeniería, frank lloyd wright comenzó su carrera como arquitecto … Era un maestro de la construcción, rebelde y adorador de la naturaleza. Frank lloyd wright frank lloyd wright es uno de los arquitectos más sobresalientes del mundo y del siglo xx. Frank lloyd wright foi um dos profissionais da área mais importantes dos estados unidos e do mundo. Já pensou em aplicar traços marcantes de um dos maiores arquitetos da história em seus trabalhos?

Já pensou em aplicar traços marcantes de um dos maiores arquitetos da história em seus trabalhos? El arquitecto estadounidense, nació el 8 de junio de 1867, en el centro de richland, wisconsin.

Creía en el poder de conectar la arquitectura con sus habitantes, afirmando una vez que «la arquitectura es la madre de todas las artes. Discípulo de sullivan en chicago, no sólo superó la teorías de éste, sino que elaboró sus propias concepciones y además asimiló las enseñanzas de los grandes arquitectos europeos como le corbusier y mies van der rohe, que trabajaron ocasionalmente en estados unidos. Después de abandonar sus estudios en ingeniería, frank lloyd wright comenzó su carrera como arquitecto … Discípulo de sullivan en chicago, no sólo superó la teorías de éste, sino que elaboró sus propias concepciones y además asimiló las enseñanzas de los grandes arquitectos europeos como le corbusier y mies van der rohe, que trabajaron ocasionalmente en estados unidos.. Discípulo de sullivan en chicago, no sólo superó la teorías de éste, sino que elaboró sus propias concepciones y además asimiló las enseñanzas de los grandes arquitectos europeos como le corbusier y mies van der rohe, que trabajaron ocasionalmente en estados unidos.

Discípulo de sullivan en chicago, no sólo superó la teorías de éste, sino que elaboró sus propias concepciones y además asimiló las enseñanzas de los grandes arquitectos europeos como le corbusier y mies van der rohe, que trabajaron ocasionalmente en estados unidos. 10 edificios de este legendario arquitecto estadounidense.

El legendario frank lloyd wright es uno de los arquitectos más famosos de la historia. Era un maestro de la construcción, rebelde y adorador de la naturaleza. Discípulo de sullivan en chicago, no sólo superó la teorías de éste, sino que elaboró sus propias concepciones y además asimiló las enseñanzas de los grandes arquitectos europeos como le corbusier y mies van der rohe, que trabajaron ocasionalmente en estados unidos. Considerado el «mejor arquitecto estadounidense de todos los tiempos» en una encuesta realizada en 1991 por el instituto americano de arquitectos, frank lloyd wright era un verdadero visionario. Taliesin, taliesin west, museo guggenheim, grady gammage memorial auditorium, unity temple, hollyhock house, fallingwater, robie house. 10 edificios de este legendario arquitecto estadounidense. Después de abandonar sus estudios en ingeniería, frank lloyd wright comenzó su carrera como arquitecto … Genio destacado de la arquitectura del siglo xx, frank lloyd wright. Frank lloyd wright foi um dos profissionais da área mais importantes dos estados unidos e do mundo. Tras abandonar el estudio de arquitectura de louis sullivan en el año 1893, wright Era un maestro de la construcción, rebelde y adorador de la naturaleza.

Taliesin, taliesin west, museo guggenheim, grady gammage memorial auditorium, unity temple, hollyhock house, fallingwater, robie house.. Después de abandonar sus estudios en ingeniería, frank lloyd wright comenzó su carrera como arquitecto … Discípulo de sullivan en chicago, no sólo superó la teorías de éste, sino que elaboró sus propias concepciones y además asimiló las enseñanzas de los grandes arquitectos europeos como le corbusier y mies van der rohe, que trabajaron ocasionalmente en estados unidos. Frank lloyd wright foi um dos profissionais da área mais importantes dos estados unidos e do mundo. Creía en el poder de conectar la arquitectura con sus habitantes, afirmando una vez que «la arquitectura es la madre de todas las artes. Es muy evidente la manera en que frank lloyd wright impone su propio estilo, para la década del siglo xx. El legendario frank lloyd wright es uno de los arquitectos más famosos de la historia. Era un maestro de la construcción, rebelde y adorador de la naturaleza. Discípulo de sullivan en chicago, no sólo superó la teorías de éste, sino que elaboró sus propias concepciones y además asimiló las enseñanzas de los grandes arquitectos europeos como le corbusier y mies van der rohe, que trabajaron ocasionalmente en estados unidos. La arquitectura de frank lloyd wright: Taliesin, taliesin west, museo guggenheim, grady gammage memorial auditorium, unity temple, hollyhock house, fallingwater, robie house.

Já pensou em aplicar traços marcantes de um dos maiores arquitetos da história em seus trabalhos? Tras abandonar el estudio de arquitectura de louis sullivan en el año 1893, wright 10 edificios de este legendario arquitecto estadounidense. Taliesin, taliesin west, museo guggenheim, grady gammage memorial auditorium, unity temple, hollyhock house, fallingwater, robie house. Es muy evidente la manera en que frank lloyd wright impone su propio estilo, para la década del siglo xx. Discípulo de sullivan en chicago, no sólo superó la teorías de éste, sino que elaboró sus propias concepciones y además asimiló las enseñanzas de los grandes arquitectos europeos como le corbusier y mies van der rohe, que trabajaron ocasionalmente en estados unidos. Considerado el «mejor arquitecto estadounidense de todos los tiempos» en una encuesta realizada en 1991 por el instituto americano de arquitectos, frank lloyd wright era un verdadero visionario. La arquitectura de frank lloyd wright: Era un maestro de la construcción, rebelde y adorador de la naturaleza. Era un maestro de la construcción, rebelde y adorador de la naturaleza.

El legendario frank lloyd wright es uno de los arquitectos más famosos de la historia... Frank lloyd wright frank lloyd wright es uno de los arquitectos más sobresalientes del mundo y del siglo xx. 10 edificios de este legendario arquitecto estadounidense. Él estudió ingeniería civil en la universidad de wisconsin en 1884. Considerado el «mejor arquitecto estadounidense de todos los tiempos» en una encuesta realizada en 1991 por el instituto americano de arquitectos, frank lloyd wright era un verdadero visionario. La arquitectura de frank lloyd wright: El arquitecto estadounidense, nació el 8 de junio de 1867, en el centro de richland, wisconsin... El legendario frank lloyd wright es uno de los arquitectos más famosos de la historia.

Haciendo uso de un estilo muy característico y diferente, siguiendo sus principios sobre la arquitectura orgánica.. Después de abandonar sus estudios en ingeniería, frank lloyd wright comenzó su carrera como arquitecto … Frank lloyd wright frank lloyd wright es uno de los arquitectos más sobresalientes del mundo y del siglo xx. Tras abandonar el estudio de arquitectura de louis sullivan en el año 1893, wright Genio destacado de la arquitectura del siglo xx, frank lloyd wright. Creía en el poder de conectar la arquitectura con sus habitantes, afirmando una vez que «la arquitectura es la madre de todas las artes. La arquitectura de frank lloyd wright: Discípulo de sullivan en chicago, no sólo superó la teorías de éste, sino que elaboró sus propias concepciones y además asimiló las enseñanzas de los grandes arquitectos europeos como le corbusier y mies van der rohe, que trabajaron ocasionalmente en estados unidos.. El arquitecto estadounidense, nació el 8 de junio de 1867, en el centro de richland, wisconsin.

Discípulo de sullivan en chicago, no sólo superó la teorías de éste, sino que elaboró sus propias concepciones y además asimiló las enseñanzas de los grandes arquitectos europeos como le corbusier y mies van der rohe, que trabajaron ocasionalmente en estados unidos.. Frank lloyd wright foi um dos profissionais da área mais importantes dos estados unidos e do mundo. Considerado el «mejor arquitecto estadounidense de todos los tiempos» en una encuesta realizada en 1991 por el instituto americano de arquitectos, frank lloyd wright era un verdadero visionario. Él estudió ingeniería civil en la universidad de wisconsin en 1884. Genio destacado de la arquitectura del siglo xx, frank lloyd wright. Después de abandonar sus estudios en ingeniería, frank lloyd wright comenzó su carrera como arquitecto … 10 edificios de este legendario arquitecto estadounidense. Taliesin, taliesin west, museo guggenheim, grady gammage memorial auditorium, unity temple, hollyhock house, fallingwater, robie house. Discípulo de sullivan en chicago, no sólo superó la teorías de éste, sino que elaboró sus propias concepciones y además asimiló las enseñanzas de los grandes arquitectos europeos como le corbusier y mies van der rohe, que trabajaron ocasionalmente en estados unidos. Taliesin, taliesin west, museo guggenheim, grady gammage memorial auditorium, unity temple, hollyhock house, fallingwater, robie house.

10 edificios de este legendario arquitecto estadounidense. Já pensou em aplicar traços marcantes de um dos maiores arquitetos da história em seus trabalhos? Taliesin, taliesin west, museo guggenheim, grady gammage memorial auditorium, unity temple, hollyhock house, fallingwater, robie house. Considerado el «mejor arquitecto estadounidense de todos los tiempos» en una encuesta realizada en 1991 por el instituto americano de arquitectos, frank lloyd wright era un verdadero visionario. La arquitectura de frank lloyd wright:. Es muy evidente la manera en que frank lloyd wright impone su propio estilo, para la década del siglo xx.

Después de abandonar sus estudios en ingeniería, frank lloyd wright comenzó su carrera como arquitecto … Frank lloyd wright frank lloyd wright es uno de los arquitectos más sobresalientes del mundo y del siglo xx. 10 edificios de este legendario arquitecto estadounidense. Frank lloyd wright frank lloyd wright es uno de los arquitectos más sobresalientes del mundo y del siglo xx.
Es muy evidente la manera en que frank lloyd wright impone su propio estilo, para la década del siglo xx... Considerado el «mejor arquitecto estadounidense de todos los tiempos» en una encuesta realizada en 1991 por el instituto americano de arquitectos, frank lloyd wright era un verdadero visionario. Es muy evidente la manera en que frank lloyd wright impone su propio estilo, para la década del siglo xx.. Taliesin, taliesin west, museo guggenheim, grady gammage memorial auditorium, unity temple, hollyhock house, fallingwater, robie house.

El arquitecto estadounidense, nació el 8 de junio de 1867, en el centro de richland, wisconsin.. El arquitecto estadounidense, nació el 8 de junio de 1867, en el centro de richland, wisconsin. 10 edificios de este legendario arquitecto estadounidense. Tras abandonar el estudio de arquitectura de louis sullivan en el año 1893, wright Genio destacado de la arquitectura del siglo xx, frank lloyd wright. Creía en el poder de conectar la arquitectura con sus habitantes, afirmando una vez que «la arquitectura es la madre de todas las artes. Discípulo de sullivan en chicago, no sólo superó la teorías de éste, sino que elaboró sus propias concepciones y además asimiló las enseñanzas de los grandes arquitectos europeos como le corbusier y mies van der rohe, que trabajaron ocasionalmente en estados unidos.

Frank lloyd wright frank lloyd wright es uno de los arquitectos más sobresalientes del mundo y del siglo xx. Haciendo uso de un estilo muy característico y diferente, siguiendo sus principios sobre la arquitectura orgánica. La arquitectura de frank lloyd wright: Taliesin, taliesin west, museo guggenheim, grady gammage memorial auditorium, unity temple, hollyhock house, fallingwater, robie house. Es muy evidente la manera en que frank lloyd wright impone su propio estilo, para la década del siglo xx... Já pensou em aplicar traços marcantes de um dos maiores arquitetos da história em seus trabalhos?
Considerado el «mejor arquitecto estadounidense de todos los tiempos» en una encuesta realizada en 1991 por el instituto americano de arquitectos, frank lloyd wright era un verdadero visionario. Es muy evidente la manera en que frank lloyd wright impone su propio estilo, para la década del siglo xx. Haciendo uso de un estilo muy característico y diferente, siguiendo sus principios sobre la arquitectura orgánica. Tras abandonar el estudio de arquitectura de louis sullivan en el año 1893, wright Discípulo de sullivan en chicago, no sólo superó la teorías de éste, sino que elaboró sus propias concepciones y además asimiló las enseñanzas de los grandes arquitectos europeos como le corbusier y mies van der rohe, que trabajaron ocasionalmente en estados unidos. Taliesin, taliesin west, museo guggenheim, grady gammage memorial auditorium, unity temple, hollyhock house, fallingwater, robie house. Frank lloyd wright frank lloyd wright es uno de los arquitectos más sobresalientes del mundo y del siglo xx. El arquitecto estadounidense, nació el 8 de junio de 1867, en el centro de richland, wisconsin. Era un maestro de la construcción, rebelde y adorador de la naturaleza. Genio destacado de la arquitectura del siglo xx, frank lloyd wright. Já pensou em aplicar traços marcantes de um dos maiores arquitetos da história em seus trabalhos?

Discípulo de sullivan en chicago, no sólo superó la teorías de éste, sino que elaboró sus propias concepciones y además asimiló las enseñanzas de los grandes arquitectos europeos como le corbusier y mies van der rohe, que trabajaron ocasionalmente en estados unidos.. Taliesin, taliesin west, museo guggenheim, grady gammage memorial auditorium, unity temple, hollyhock house, fallingwater, robie house. 10 edificios de este legendario arquitecto estadounidense. Creía en el poder de conectar la arquitectura con sus habitantes, afirmando una vez que «la arquitectura es la madre de todas las artes. Já pensou em aplicar traços marcantes de um dos maiores arquitetos da história em seus trabalhos? Discípulo de sullivan en chicago, no sólo superó la teorías de éste, sino que elaboró sus propias concepciones y además asimiló las enseñanzas de los grandes arquitectos europeos como le corbusier y mies van der rohe, que trabajaron ocasionalmente en estados unidos. Genio destacado de la arquitectura del siglo xx, frank lloyd wright. Considerado el «mejor arquitecto estadounidense de todos los tiempos» en una encuesta realizada en 1991 por el instituto americano de arquitectos, frank lloyd wright era un verdadero visionario.. Creía en el poder de conectar la arquitectura con sus habitantes, afirmando una vez que «la arquitectura es la madre de todas las artes.

Él estudió ingeniería civil en la universidad de wisconsin en 1884. Considerado el «mejor arquitecto estadounidense de todos los tiempos» en una encuesta realizada en 1991 por el instituto americano de arquitectos, frank lloyd wright era un verdadero visionario.. Él estudió ingeniería civil en la universidad de wisconsin en 1884.

La arquitectura de frank lloyd wright:. . Taliesin, taliesin west, museo guggenheim, grady gammage memorial auditorium, unity temple, hollyhock house, fallingwater, robie house.

Frank lloyd wright foi um dos profissionais da área mais importantes dos estados unidos e do mundo. Él estudió ingeniería civil en la universidad de wisconsin en 1884. El arquitecto estadounidense, nació el 8 de junio de 1867, en el centro de richland, wisconsin. Era un maestro de la construcción, rebelde y adorador de la naturaleza. Frank lloyd wright foi um dos profissionais da área mais importantes dos estados unidos e do mundo. Discípulo de sullivan en chicago, no sólo superó la teorías de éste, sino que elaboró sus propias concepciones y además asimiló las enseñanzas de los grandes arquitectos europeos como le corbusier y mies van der rohe, que trabajaron ocasionalmente en estados unidos. Genio destacado de la arquitectura del siglo xx, frank lloyd wright. Já pensou em aplicar traços marcantes de um dos maiores arquitetos da história em seus trabalhos? Taliesin, taliesin west, museo guggenheim, grady gammage memorial auditorium, unity temple, hollyhock house, fallingwater, robie house. La arquitectura de frank lloyd wright: Haciendo uso de un estilo muy característico y diferente, siguiendo sus principios sobre la arquitectura orgánica. Frank lloyd wright frank lloyd wright es uno de los arquitectos más sobresalientes del mundo y del siglo xx.
